Over 4,200 sq. ft. of beautifully presented, character-filled accommodation in the heart of Appleby
Stunning 36ft open-plan living kitchen. High specification, perfect for entertaining and family life
Spacious dual aspect lounge and impressive garden room with log burner and Velux windows
Self contained ground floor annexe with its own entrance, kitchen, lounge, bedroom, and three shower
Beautifully landscaped rear gardens with patio areas, lawn, and a private courtyard setting.
Fully insulated timber outbuilding currently used as a gym and bar, versatile for a variety of uses.
Two gated gravel driveways providing extensive off-road parking and separate access to the annexe.
Six generous bedrooms including a luxurious principal suite with balcony and walk-in wardrobe
High quality bathrooms throughout, including a four-piece family bathroom and two en-suites.
Prime village location with excellent access to the M42 and top rated schools
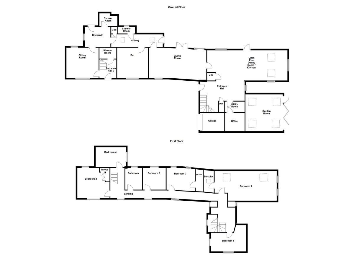
Nestled in the sought-after village of Appleby Magna, this impressive six bedroom detached character home offers over 4,200 sq. ft. of beautifully presented accommodation. Combining period charm with modern living, the property features multiple reception spaces, a self-contained annexe, and stunning landscaped gardens, perfect for family life or multi generational living.
THEFORE Set back behind two gated gravel driveways, the property enjoys an attractive frontage with ample off-road parking and separate access to the self contained annexe.
GROUNDFLOOR A welcoming entrance hall filled with natural light leads to a study, utility room, and cloakroom WC. The heart of the home is a magnificent 36ft open-plan living kitchen, finished to a high specification and ideal for entertaining. The spacious dual-aspect lounge/family room opens onto a charming courtyard, while the impressive garden room features bi-folding doors, Velux windows, and a log burner for year-round comfort. The adjoining annexe offers its own entrance, lounge, kitchen, double bedroom, and three shower areas, ideal for guests, extended family, or rental use.
GARDENROOM17' x 16' 6" (5.18m x 5.03m)
OPENPLANDININGROOM/KITCHEN12' 6" x 35' 1" (3.81m x 10.69m)
DININGROOM12' 6" x 18' 4" (3.81m x 5.59m)
KITCHEN13' x 16' 9" (3.96m x 5.11m)
WC2' 9" x 3' 8" (0.84m x 1.12m)
UTILITYROOM8' 4" x 4' 8" (2.54m x 1.42m)
OFFICE8' x 8' 4" (2.44m x 2.54m)
LIVINGROOM25' 5" x 13' 2" (7.75m x 4.01m)
BAR13' 6" x 13' 2" (4.11m x 4.01m)
HALLWAYSHOWERROOM2' 9" x 7' 5" (0.84m x 2.26m)
KITCHENTWO8' 8" x 11' 3" (2.64m x 3.43m)
KITCHENSHOWERROOM7' 3" x 5' 5" (2.21m x 1.65m)
SITTINGROOM14' 1" x 13' 2" (4.29m x 4.01m)
SHOWERROOMENTRY10' 6" x 3' 2" (3.2m x 0.97m)
FIRSTFLOOR Two staircases lead to six generous bedrooms, including a stunning principal suite with walk-in wardrobe, en-suite shower room, and private balcony. A further bedroom benefits from an en-suite, while the remaining rooms are served by a luxurious four-piece family bathroom.
BEDROOMONE12' 6" x 27' 2" (3.81m x 8.28m)
BEDROOMONEEN-SUITE7' 7" x 4' 2" (2.31m x 1.27m)
BEDROOMTWO13' 4" x 13' 6" (4.06m x 4.11m)
BEDROOMTHREE12' 5" x 9' 8" (3.78m x 2.95m)
BEDROOMTHREEEN-SUITE9' 7" x 3' 2" (2.92m x 0.97m)
BEDROOMFOUR13' 3" x 8' 9" (4.04m x 2.67m)
BEDROOMFIVE11' 4" x 13' 6" (3.45m x 4.11m)
BEDROOMSIX10' x 9' 8" (3.05m x 2.95m)
BATHROOM7' 3" x 9' 6" (2.21m x 2.9m)
THEREAR The landscaped rear gardens offer a peaceful retreat, with a mix of patio and lawned areas surrounding a beautifully maintained courtyard. A fully insulated timber outbuilding, currently used as a gym and bar, adds versatility to this impressive outdoor space.
SUMMERHOUSE/BAR13' 9" x 7' 8" (4.19m x 2.34m)
GYM19' 5" x 11' 6" (5.92m x 3.51m)
PLAYHOUSE5' 5" x 7' 8" (1.65m x 2.34m)
ANTIMONEYLAUNDERING In accordance with the most recent Anti Money Laundering Legislation, buyers will be required to provide proof of identity and address to the Taylor Cole Estate Agents once an offer has been submitted and accepted (subject to contract) prior to Solicitors being instructed.
TENURE We have been advised that this property is freehold however, prospective buyers are advised to verify the position with their solicitor / legal representative.
VIEWING By prior appointment with Taylor Cole Estate Agents on the contact number provided.