Occupying a prime corner position on the prestigious former golf course development in Amington, this exceptional four bedroom detached residence on Rangemoor Crescent offers generous living proportions, high quality presentation and a stunning setting overlooking mature green space. Beautifully styled throughout and perfectly suited to modern family life, the property boasts multiple reception rooms, a contemporary open-plan kitchen arrangement, two en-suites, a double garage and a private rear garden.
Early viewing is strongly recommended to fully appreciate everything this amazing home has to offer.
THEFORE The property immediately impresses with its attractive double fronted façade, Tudor style detailing and commanding corner plot position. A generous driveway provides ample off-road parking and leads to the integral double garage, while a neatly maintained lawn and hedged boundary enhance the home's kerb appeal. Its outlook across the development and towards established greenery further elevates its sense of space and exclusivity.
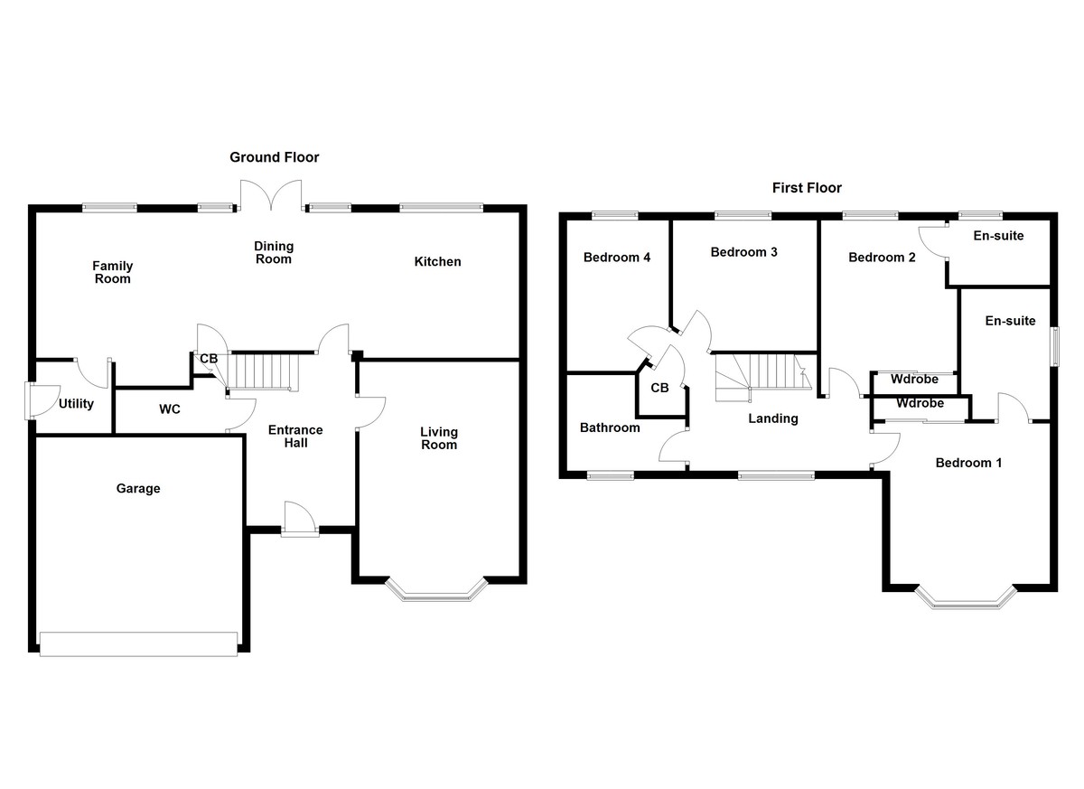
GROUNDFLOOR A welcoming entrance hall sets the tone for the quality within, offering a bright and spacious introduction to the home. To the front aspect, the living room is a beautifully presented and elegant space, featuring a bay window and a stylish electric fireplace, creating a warm yet refined setting ideal for relaxing evenings or entertaining guests. To the rear, the property truly comes into its own with a superb open-plan kitchen and dining arrangement. The kitchen is finished to a high standard with modern cabinetry, quality work surfaces and a central island that provides both additional preparation space and a sociable focal point. Contemporary lighting and thoughtful design details enhance the overall aesthetic. The dining area flows seamlessly into the family room, creating an expansive and versatile living space that overlooks the garden. A separate utility room offers further practicality with additional storage and appliance space, along with internal access to the double garage. A convenient guest WC completes the ground floor accommodation.
LIVINGROOM17' 8" x 11' 8" (5.38m x 3.56m)
OPENPLANKITCHEN/DINING/FAMILYROOM
KITCHEN13' 4" x 11' 5" (4.06m x 3.48m)
DININGROOM12' 8" x 11' 9" (3.86m x 3.58m)
FAMILYROOM13' 2" x 12' (4.01m x 3.66m)
UTILITYROOM6' 3" x 5' 11" (1.91m x 1.8m)
CLOAKROOM7' 6" x 3' 7" (2.29m x 1.09m)
GARAGE17' 1" x 17' (5.21m x 5.18m)
FIRSTFLOOR The first floor continues to impress with four generously sized bedrooms arranged around a spacious landing. The principal bedroom serves as a luxurious retreat, complete with fitted wardrobes and a private en-suite shower room. Bedroom two also benefits from its own en-suite facilities. Bedrooms three and four are both well proportioned and versatile, suitable for family use, guest accommodation or home working. These rooms are served by a stylish family bathroom fitted with a contemporary suite. The overall layout provides both comfort and practicality for growing families.
BEDROOMONE16' 8" x 11' 8" (5.08m x 3.56m)
BEDROOMONEEN-SUITE10' 9" x 6' 5" (3.28m x 1.96m)
BEDROOMTWO14' 4" x 10' 3" (4.37m x 3.12m)
BEDROOMTWOEN-SUITE7' 5" x 5' 4" (2.26m x 1.63m)
BEDROOMTHREE11' 1" x 10' (3.38m x 3.05m)
BEDROOMFOUR12' 5" x 8' 6" (3.78m x 2.59m)
BATHROOM8' 4" x 7' 9" (2.54m x 2.36m)
THEREAR The rear garden is beautifully landscaped to create a low maintenance yet highly functional outdoor space. Finished with high quality artificial lawn, it offers a pristine appearance all year round without the upkeep, making it ideal for busy families. A paved patio area provides the perfect setting for outdoor dining, entertaining and summer gatherings, while fenced boundaries ensure privacy and security. The corner plot position further enhances the sense of openness, with mature greenery beyond reflecting the peaceful surroundings of the former golf course development.
ANTIMONEYLAUNDERING In accordance with the most recent Anti Money Laundering Legislation, buyers will be required to provide proof of identity and address to the Taylor Cole Estate Agents once an offer has been submitted and accepted (subject to contract) prior to Solicitors being instructed.
TENURE We have been advised that this property is freehold however, prospective buyers are advised to verify the position with their solicitor / legal representative.
VIEWING By prior appointment with Taylor Cole Estate Agents on the contact number provided.
This beautifully presented three bedroom detached home offers modern family living with well planned accommodation across two floors. The property has been thoughtfully maintained and styled throughout, providing bright ...
A spacious and well proportioned four bedroom detached family home which is situated in a highly desirable residential area, close to the highly recommended Dosthill Primary Academy, this property occupies a generous plo...
This beautifully presented three bedroom semi detached has been extensively renovated and improved by the current owners to create a stylish, modern property ready to move straight into. The home has undergone a full pro...