Energy Efficient Approach & Triple Glazing Throughout
Superb Open Plan Living Area
Multiple Reception Rooms
Four Double Bedrooms, Three Bathrooms
Beautifully Landscaped South-West Rear Gardens
Close Proximity to Hodge Lane Nature Reserve & Coventry Canal
Excellent Local Schooling & Commuter Links
Freehold
Welcome to this executive and remarkably spacious detached family home, offering privacy and exclusivity within one of Tamworth's most prestigious postal codes. Tastefully designed and tailored by the current owners, this magnificent residence showcases timeless finishes and expansive reception spaces across approximately 2000 square feet of refined living space, with energy conscious choices at the forefront of the property design.
LOCALE Nestled in a sought-after south-westerly plot within the distinguished 'Chandlers Drive', this home benefits from a unique setting among bespoke, self-built properties. The location is ideal for families, with excellent schools and amenities nearby, as well as swift access to the picturesque Hodge Lane Nature Reserve and the Coventry Canal.
TRANSPORT Tamworth offers superb retail and sports facilities, along with exceptional transport links, including the M42 just seven minutes away, connections to Birmingham and East Midlands airports, and rail links to London Euston in just seventy minutes.
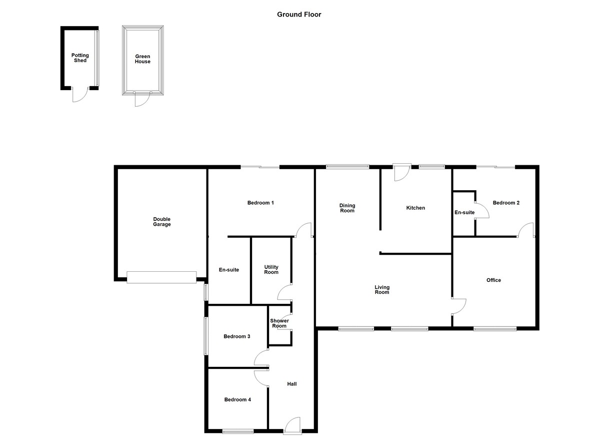
INTERNAL Upon entering, you are welcomed by a bright and inviting reception hallway, hinting at the generous proportions found throughout the home. The heart of the property is an exquisite open-plan living area, seamlessly integrating a spacious lounge with a well-proportioned dining area. Character features abound, with a custom brick-built fireplace and log burner in the lounge, complemented by a rustic open fireplace in the dining room.
The adjacent oak kitchen is a timeless masterpiece, featuring quality wooden cabinetry, sleek modern appliances, and a raised drinks bar. A charming stable-style door leads to the rear garden, creating an idyllic setting for entertaining.
A versatile home office, positioned at the front of the property, offers a peaceful retreat with delightful views. This spacious area has previously served as part of a separate guest living space, benefiting from an adjoining bedroom.
Practicality meets modern convenience with a dedicated utility room and a separate shower room, both accessed via the reception hallway.
RECEPTIONHALL
FAMILYLOUNGE22' 10" x 12' 0" (6.96m x 3.68m)
DININGAREA14' 1" x 10' 8" (4.30m x 3.26m)
FITTEDKITCHEN13' 9" x 11' 9" (4.20m x 3.60m)
UTILITYROOM
OFFICE/SITTINGROOM14' 11" x 13' 8" (4.56m x 4.19m)
SLEEPINGQUARTERS The sleeping quarters continue to impress, offering four generously sized double bedrooms. The two largest, situated at the rear of the home, feature sliding doors opening directly onto the serene south-facing garden and each benefits from a luxurious en-suite bathroom. The remaining bedrooms offer comfortable proportions, with one currently utilised as a dressing room, catering to flexible accommodation needs.
BEDROOMONE17' 10" x 11' 3" (5.45m x 3.45m)
ENSUITE
BEDROOMTWO13' 8" x 10' 11" (4.19m x 3.34m)
ENSUITE
BEDROOMTHREE/DRESSINGROOM10' 3" x 9' 10" (3.14m x 3.02m)
BEDROOMFOUR10' 3" x 9' 1" (3.14m x 2.79m)
SHOWERROOM
EXTERNAL The outdoor space is a true sanctuary in which you can both unwind or host external entertainment within its private hedge-lined borders. The south-facing nature of the rear aspect makes it perfect for gardening, complemented by a potting shed, greenhouse, mature fruit trees (fig, pear, and a raspberry bush), and raised kitchen garden beds filled with herbs and salad greens. The front garden boasts an expansive raised bed for organic vegetable cultivation, along with a manicured lawn and rare mature trees.
A double garage and a generous driveway provide ample parking, accommodating two vehicles indoors and five additional spaces outdoors.
DOUBLEGARAGE18' 3" x 14' 7" (5.57m x 4.46m)
GREENHOUSE10' 2" x 5' 4" (3.10m x 1.65m)
POTTINGSHED9' 4" x 5' 0" (2.86m x 1.54m)
ANTIMONEYLAUNDERING In accordance with the most recent Anti Money Laundering Legislation, buyers will be required to provide proof of identity and address to the Taylor Cole Estate Agents once an offer has been submitted and accepted (subject to contract) prior to Solicitors being instructed.
TENURE We have been advised that this property is freehold, however, prospective buyers are advised to verify the position with their solicitor / legal representative.
VIEWING By prior appointment with Taylor Cole Estate Agents on the contact number provided.
This well presented detached family home offers comfortable and well balanced accommodation, ideal for modern family living. The property features three bedrooms, a spacious living and dining room, a fitted kitchen, a ga...
Located in the heart of Tamworth, this charming two-bedroom semi-detached home offers spacious rooms, character features, and a private rear garden. Ideal for first-time buyers or investors, the property combines traditi...
This well presented apartment offers modern and practical living accommodation throughout, featuring two bedrooms, including a principal bedroom with en suite, alongside a bright open plan kitchen and living space. The p...