Impressive open plan kitchen dining and living space
Modern kitchen with central island
Spacious and versatile ground floor layout
First floor family bathroom
Top floor principal bedroom with en suite and dressing area
Enclosed rear garden with patio and lawn
Allocated parking
Close to local amenities
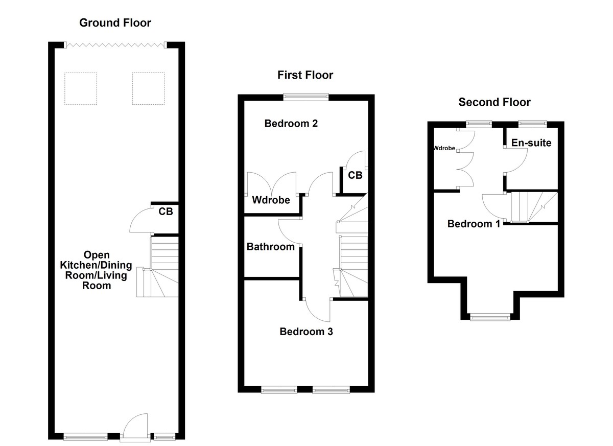
This beautifully presented three storey family home offers an exceptional blend of space, style, and versatility, making it an ideal purchase for growing families. Thoughtfully designed with modern living in mind, the property features an impressive open plan ground floor layout, creating a bright and sociable environment that is perfectly suited to both everyday living and entertaining.
Arranged across three floors, the home provides well balanced accommodation, including a stunning top floor principal suite with en suite and dressing area, along with two further bedrooms and a family bathroom. With a private rear garden and allocated parking, this property delivers contemporary comfort within a desirable residential setting.
THEFORE The property enjoys an attractive frontage within a modern development, with a neat and well maintained exterior that immediately appeals. Driveway parking is available in front of the property, ensuring ease of access for residents and visitors.
The entrance is welcoming and well presented, setting the tone for the stylish accommodation found throughout the home.
GROUNDFLOOR The ground floor is centred around a superb open plan kitchen, dining, and living space, offering a seamless layout that maximises both space and natural light. The kitchen is well appointed with a range of modern units, integrated appliances, and ample worktop space, complemented by a central island that provides additional storage and informal dining.
The dining and living areas flow effortlessly from the kitchen, creating a versatile space ideal for family life and entertaining guests. Large bi-fold doors and windows to the rear enhance the sense of space and light, while providing direct access to the garden, making this a truly sociable and inviting area.
OPENPLANKITCHEN/DININGROOM/LIVINGROOM12' 9" x 39' 8" (3.89m x 12.09m)
FIRSTFLOOR The first floor comprises two generously sized bedrooms, both offering comfortable accommodation with ample room for furnishings. These rooms are ideal for children, guests, or home working, providing flexibility to suit a variety of needs.
A modern family bathroom serves this floor, finished with a contemporary suite and fittings.
BEDROOMTWO12' 9" x 9' 7" (3.89m x 2.92m)
BEDROOMTHREE12' 9" x 8' 9" (3.89m x 2.67m)
BATHROOM6' 3" x 5' 8" (1.91m x 1.73m)
SECONDFLOOR Occupying the top floor, the principal bedroom is a standout feature of the property, offering a spacious and private retreat. The room benefits from fitted wardrobes, creating a dedicated dressing area, along with a stylish en suite shower room.
This level provides a peaceful and secluded space, ideal for relaxation, and adds a luxurious element to the overall accommodation.
BEDROOMONE12' 9" x 22' 4" (3.89m x 6.81m)
BEDROOMONEEN-SUITE5' 4" x 6' 6" (1.63m x 1.98m)
THEREAR The rear garden is enclosed and thoughtfully arranged, offering a combination of lawn and patio areas that cater to both relaxation and outdoor entertaining. The space is well proportioned, making it suitable for families, gardening enthusiasts, or those who simply enjoy spending time outdoors.
Fenced boundaries provide privacy and security, while the garden offers a pleasant outlook and a manageable yet enjoyable outdoor space.
ANTIMONEYLAUNDERING In accordance with the most recent Anti Money Laundering Legislation, buyers will be required to provide proof of identity and address to the Taylor Cole Estate Agents once an offer has been submitted and accepted (subject to contract) prior to Solicitors being instructed.
TENURE We have been advised that this property is freehold however, prospective buyers are advised to verify the position with their solicitor / legal representative.
VIEWING By prior appointment with Taylor Cole Estate Agents on the contact number provided.