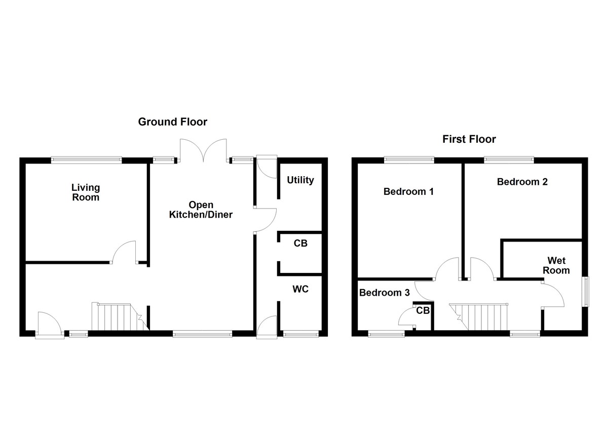
This well presented family home offers spacious and modern accommodation arranged over two floors. The property features a generous open plan kitchen and dining space, comfortable living areas, three bedrooms and a contemporary wet room, making it ideal for families or buyers seeking flexible living. A utility room and a WC are also part of the ground floor.
THEFORE To the front of the property is a wide driveway providing off road parking. The frontage is low maintenance and sets the home back from the road, creating a practical and welcoming first impression.
GROUNDFLOOR The ground floor comprises a bright and comfortable living room, ideal for everyday relaxation. To the rear sits an impressive open plan kitchen and dining area, designed as the heart of the home with ample space for cooking, dining and entertaining. Double doors open out from the kitchen area, allowing plenty of natural light to flow through the space.
A utility, storage cupboard and WC area is also located on this level.
LIVINGROOM13' 2" x 10' 7" (4.01m x 3.23m)
OPENPLANKITCHEN/DINER18' 1" x 11' 2" (5.51m x 3.4m)
UTILITYROOM7' 3" x 4' 6" (2.21m x 1.37m)
WC4' 5" x 3' (1.35m x 0.91m)
FIRSTFLOOR The first floor offers three well proportioned bedrooms, including a spacious main bedroom and two further rooms suitable for children, guests or home working. A modern wet room serves the first floor, fitted with contemporary sanitary ware and finished to a high standard.
BEDROOMONE13' 2" x 10' 7" (4.01m x 3.23m)
BEDROOMTWO11' 3" x 10' 7" (3.43m x 3.23m)
BEDROOMTHREE9' 1" x 6' 9" (2.77m x 2.06m)
BATHROOM/WETROOM9' 9" x 8' 3" (2.97m x 2.51m)
THEREAR To the rear is an enclosed garden offering outdoor space for seating, play or general enjoyment. The garden provides a pleasant extension of the living accommodation.
ANTIMONEYLAUNDERING In accordance with the most recent Anti Money Laundering Legislation, buyers will be required to provide proof of identity and address to the Taylor Cole Estate Agents once an offer has been submitted and accepted (subject to contract) prior to Solicitors being instructed.
TENURE We have been advised that this property is freehold however, prospective buyers are advised to verify the position with their solicitor / legal representative.
VIEWING By prior appointment with Taylor Cole Estate Agents on the contact number provided.
This well maintained two bedroom mid terrace home offers thoughtfully arranged accommodation across two floors, ideal for first time buyers, downsizers or those seeking an investment opportunity. The property combines pr...
This attractive four-bedroom detached home offers a well presented interior with multiple reception spaces and comfortable bedrooms. The layout provides excellent flexibility for family living with a blend of modern touc...
A well presented two bedroom home offering bright and modern accommodation throughout. The property features an open plan kitchen dining room, a spacious living area and a private rear garden, making it ideal for first t...