Centrally located three-bedroom semi-attached family home in Tamworth
Spacious open-plan living area with feature front aspect window
Modern kitchen/diner with breakfast bar and French doors to rear garden
Ground floor guest cloakroom for added convenience
Three well-proportioned bedrooms with built-in wardrobes
Contemporary family bathroom with matching three-piece suite
Driveway providing double off-road parking
Side entrance gate offering additional access to the garden
Solar Panels offering improved energy efficiency and reduced utility costs
Versatile summer house ideal for outdoor seating or storage
Located in the heart of Tamworth, this three-bedroom semi-detached family home offers well presented living accommodation throughout, open areas, and a low-maintenance rear garden, ideal for families or those looking to settle in a central and accessible location.
THEFORE The property benefits from a driveway providing double off-road parking, with access to the side entrance gate and the main front door.
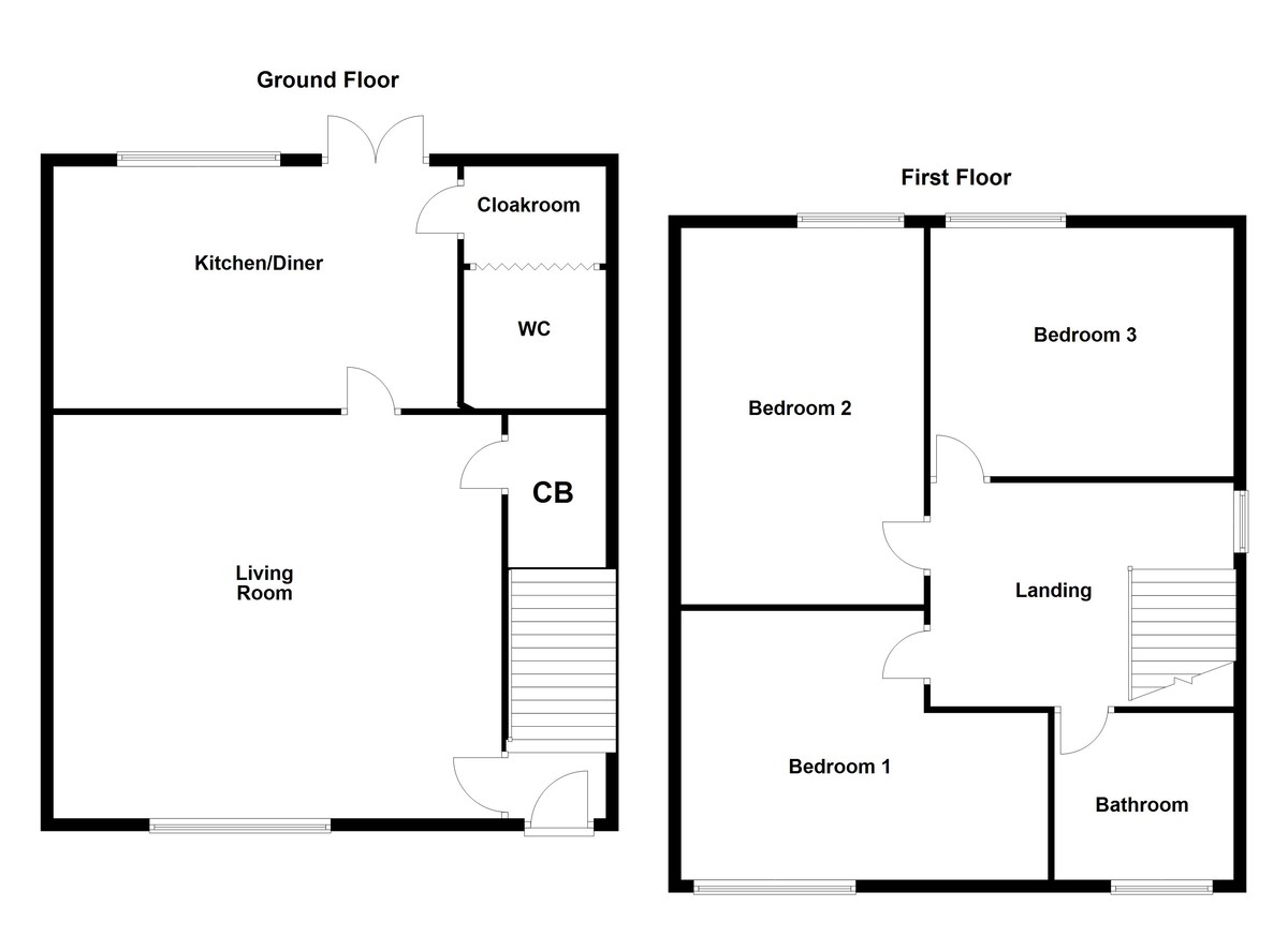
GROUNDFLOOR Upon entering, you are greeted by a entrance hall, which leads to a welcoming open-plan living area featuring ample floor space for lounge furniture and a window to the front aspect. The space flows seamlessly into the kitchen/dining area, which includes a modern range of matching wall and base units, a breakfast bar, and plenty of room for dining furniture. French doors open to the rear garden, and there's also convenient access to a guest cloakroom.
LIVINGROOM15' 01" x 13' 93" (4.6m x 6.32m)
OPENPLANLIVINGROOM/KITCHEN/DININGAREA
KITCHEN/DINER9' 02" x 14' 87" (2.79m x 6.48m)
GUESTCLOAKROOM2' 9" x 4' 37" (0.84m x 2.16m)
FIRSTFLOOR Upstairs, the first-floor landing leads to three well-proportioned bedrooms, each with built-in wardrobes. The family bathroom features a contemporary three-piece suite.
BEDROOMONE9' 66" x 10' 66" (4.42m x 4.72m)
BEDROOMTWO12' 57" x 9' 6" (5.11m x 2.9m)
BEDROOMTHREE7' 03" x 8' 49" (2.21m x 3.68m)
BATHROOM7' 87" x 6' 7" (4.34m x 2.01m)
THEREAR The rear garden has been designed for low maintenance, with a stylish patio area covered by a pagoda, decorative plum slate chippings, and a versatile summer house, perfect for outdoor seating or additional storage. The property also benefits from solar panels on the roof, offering improved energy efficiency and reduced utility costs.
ANTIMONEYLAUNDERING In accordance with the most recent Anti Money Laundering Legislation, buyers will be required to provide proof of identity and address to the Taylor Cole Estate Agents once an offer has been submitted and accepted (subject to contract) prior to Solicitors being instructed.
TENURE We have been advised that this property is freehold, however, prospective buyers are advised to verify the position with their solicitor / legal representative.
VIEWING By prior appointment with Taylor Cole Estate Agents on the contact number provided.
Nestled in a quiet, residential cul de sac, this spacious and extended family home offers the ideal blend of comfort, style, and convenience. With excellent schools just a stone's throw away and local amenities within ea...
This well presented three bedroom semi detached home offers spacious and versatile accommodation across two floors, making it ideal for growing families or those seeking additional living space. The property combines a g...
Situated within a highly sought-after residential area of Tamworth, this well-presented three-bedroom detached family home offers generous and thoughtfully arranged accommodation designed to suit modern family life. The ...