Attractive four-bedroom detached family home in a sought-after residential location
Spacious lounge with large bay window providing plenty of natural light
Modern kitchen/breakfast room with ample storage
Separate dining room with direct access to the garden
Master bedroom with fitted wardrobes and en-suite shower room
Second double bedroom also benefitting from it's own en-suite
Two further great sized bedrooms served by a stylish family bathroom
Practical ground floor WC and a useful boot room/utility for added convenience
Integral garage with driveway parking for multiple vehicles
Enclosed rear garden with patio and lawn, perfect for family living and outdoor dining
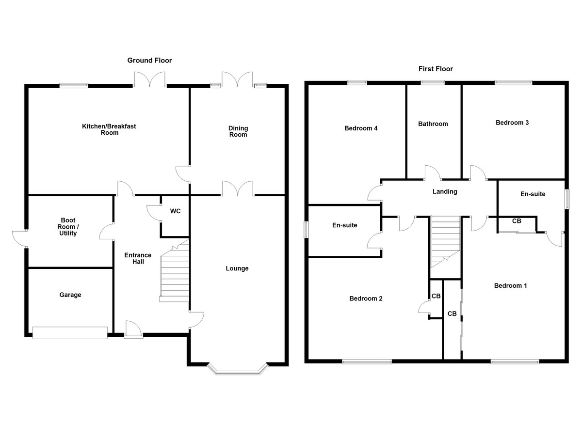
This impressive four-bedroom detached home offers spacious and versatile family living, thoughtfully designed with modern convenience and comfort in mind. Set within a popular residential area, the property benefits from ample living accommodation, stylish interiors, and a private rear garden, making it ideal for growing families.
THEFORE The front of the property features a smart, modern facade with a driveway providing off-road parking and access to the integral garage. The home presents excellent curb appeal, setting the tone for the well-planned interior.
GROUNDFLOOR On the ground floor, the welcoming entrance hall leads into a bright and spacious lounge with large windows allowing natural light to flood the room. A generous dining room provides the perfect space for family meals or entertaining, with access to the rear garden. The modern kitchen/breakfast room is well-equipped with contemporary units and integrated appliances, complemented by a useful boot room/utility. A convenient WC completes this floor.
LIVINGROOM10' 8" x 18' 2" (3.25m x 5.54m)
DININGROOM9' 7" x 9' 7" (2.92m x 2.92m)
KITCHEN/DINER16' 7" x 9' 7" (5.05m x 2.92m)
GUESTCLOAKROOM5' 4" x 2' 7" (1.63m x 0.79m)
UTILITY/BOOTROOM8' 3" x 9' 0" (2.51m x 2.74m)
FIRSTFLOOR The first floor offers four well-proportioned bedrooms. The principal bedroom benefits from fitted wardrobes and an en-suite shower room, while bedroom two also has its own en-suite. Two further bedrooms are served by the stylish family bathroom. The landing provides access to additional storage cupboards, ensuring practicality throughout.
BEDROOMONE15' 0" x 10' 8" (4.57m x 3.25m)
BEDROOMONEEN-SUITE6' 7" x 5' 8" (2.01m x 1.73m)
BEDROOMTWO9' 4" x 13' 5" (2.84m x 4.09m)
BEDROOMTWOEN-SUITE5' 9" x 5' 9" (1.75m x 1.75m)
BEDROOMTHREE8' 9" x 8' 1" (2.67m x 2.46m)
BEDROOMFOUR8' 2" x 10' 3" (2.49m x 3.12m)
BATHROOM6' 1" x 7' 3" (1.85m x 2.21m)
THEREAR To the rear, the property boasts a private enclosed garden, mainly laid to lawn with a patio area ideal for outdoor dining and relaxation. The space is perfect for children to play safely or for enjoying summer entertaining with friends and family.
ANTIMONEYLAUNDERING In accordance with the most recent Anti Money Laundering Legislation, buyers will be required to provide proof of identity and address to the Taylor Cole Estate Agents once an offer has been submitted and accepted (subject to contract) prior to Solicitors being instructed.
TENURE We have been advised that this property is freehold however, prospective buyers are advised to verify the position with their solicitor / legal representative.
VIEWING By prior appointment with Taylor Cole Estate Agents on the contact number provided.
This charming three storey home offers generous and versatile accommodation arranged across three levels. The property combines character features with practical family living, providing three bedrooms, multiple receptio...
This well presented three bedroom mid terrace home offers spacious and practical accommodation arranged over two floors. The property is ideal for families, first time buyers, or investors, combining modern finishes with...
This well presented two bedroom apartment offers modern, open plan living within a popular residential development. The property is ideal for first time buyers, professionals, or investors, featuring spacious accommodati...